6-Zimmer Ferienhaus in Toplage am Bodden & Hafen – von Privat - vielseitig nutzbar
Objektart
Adresse
Objektdaten
Informationen
Ausstattung
Details
Die Traumhaft gelegene Immobilie wurde zuletzt als á la carte Restaurant und Pension betrieben.
Ein rentables Konzept ist eine komplette Vermietung des Objektes (Gruppen-Familien-Ferienhaus) z.B. Mehrgenerationenhaus oder als 6 Familienferienhaus in Erholungslage am Wasser & Hafen.
Jedoch ist auch eine Eigennutzung als Erst- und Zweitwohnsitz möglich. Eine Nutzungsänderung kann jederzeit ohne Genehmigung der Behörde erfolgen.
Auch eine bequeme und entspannte Parkplatzsituation bis zu 8-10 PKW-Stellplätze, trägt weiterhin zu einer entspannten Atmosphäre bei.
Das unausgebaute große Dachgeschoß (ca.300qm) könnte als zusätzlicher Wohnraum oder Dachterrasse ausgebaut werden. Hier wäre ein unvergleichlicher Blick auf den Bodden (Insel, Hafen und Wasserblick) mit den schönsten und traumhaftesten Sonnenuntergängen durch die nahezu perfekte Himmelsausrichtung gewährleistet.
Aufgrund der sehr großen Nachfrage, werden in der Region große Familiengerechte Ferienhäuser dringend gesucht. Die Zielgruppen sind größere Familien sowie kleine Reisegruppen wie Vereinsreisen bzw. Gruppenreisen. Hier wäre eine hohe Auslastung gewährleistet.
Die Ausstattung kann übernommen werden bzw. auch als Mehrfamilienhaus genutzt werden. Eine teilweise Sanierung der Küche und der Schlafräume sind je nach Geschmack sicherlich erforderlich. Auch sollte man einen Farbeimer in die Hand nehmen. Ansonsten ist alles funktionsfähig.
Eine Gasanschluss (Erdgas) wurde im Jahr 2022 neu verlegt und angeschlossen. Weiterhin wurde ein neuer Brennwertkessel (Bosch) eingebaut.
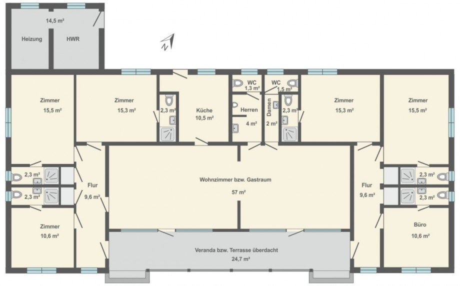
Ein Grundriss liegt anbei, die Größe des Gastraumes inkl. Küche und Gäste-WC`s sowie der Veranda beträgt ca. 100qm inkl. Abstellraum für die Küche. Die Pension hat eine Größe von ca. 120qm und ist aufgeteilt 4 DZ und 2EZ.. Die Immobilie wird in dem jetzigen Zustand an den Käufer wie es steht und liegt übergeben.
Unser Ferienhaus/Pension findet Sie in dem beschaulichen Urlauber- und Fischerdorf Fuhlendorf OT Bodstedt, sehr nahe am Bodden gelegen. Etwas abseits der touristischen Hochburgen auf der Halbinsel Fischland-Darß-Zingst erwartet Sie hier eine stark wachsende Urlauberregion, die einmalig ist. Lassen Sie sich von der einzigartigen Landschaft zwischen Meer und Bodden verzaubern. Zahlreiche Rad-, Wasser- und Wanderwege machen es möglich, Natur pur zu erleben. Entlang der südlichen Boddenküste führt ein wunderbarer, gut ausgebauter Fahrradweg in die bekannten Ostseebäder (Zingst, Prerow, Ahrenshoop.…). Etwa 200m von unserem Ferienhaus/Pension entfernt, befindet sich der neue Traditionshafen von Bodstedt. Von dort können Sie herrliche Dampferfahrten nach Prerow, Born, Ribnitz-Damgarten, Althagen (Ahrenshoop und Zingst machen, die Zeesenboote mit ihren großen braunen Segeln bewundern oder abends die traumhaften Sonnenuntergänge beobachten. Am ersten Wochenende im September findet auf dem Bodstedter Bodden die große Zeesenbootregatta statt.Bei einem Spaziergang durch den Ort finden Sie hier noch Häuser mit dem typischen Schilfdach und vorbei an der alten Dorfkirche kommen Sie zum Badestrand und haben einen herrlichen Blick auf den Bodden. Hier ist es nicht nur im Sommer herrlich, sondern auch die Vor- und Nachsaison hat ihre Reize. Dann kommen Wanderer und Fahrradfahrer besonders auf ihre Kosten. Ab September bis in den Spätherbst können z.B. die Kraniche in der freien Landschaft beobachtet und erholsame Spaziergänge durch die Wälder, Wiesen und Felder unternommen werden. Dabei kann man eine unberührte Vogel-, Tier- und Pflanzenwelt erleben. Durch die bereits 65 gut ausgestattenen Reetgedeckten Ferienhäuser u.a. mit Sauna, Kamin und Fußbodenheizung kommen auch in der dunklen und winterlichen Jahreszeit viele Urlauber zum entschleunigen oder genießen einfach nur die Ruhe, die wunderschöne Landschaft und die gesunde frische Luft.
Der Verkauf erfolgt direkt vom Eigentümer. Sie erreichen uns unter 0172-300 8000 Herr Matthias Halling. Grundstücksgröße beträgt ca. 1.038qm. Nur seriöse und ernstgemeinte Anfragen mit entsprechenden nachweisen werden beantwortet. Am besten melden Sie sich persönlich per Telefon. Vielen Dank Familie Halling-Buchholz.
Ansprechpartner
Mobil: +49 (0) 172-300 8000
info@advance-management.de
Energieausweis (Verbrauchsausweis)
203 kWh / (m²*a) Energieverbrauchskennwert
203 kWh / (m²*a) Energieverbrauchskennwert
203 kWh / (m²*a) Energieverbrauchskennwert
Weitere Informationen
| Befeuerung | Gas |
| Energieverbrauch für Warmwasser | enthalten |
| Energieausweis Baujahr | 1971 |
| Heizung | Zentralheizung |
Ich bin damit einverstanden, dass mir Karten von Google angezeigt werden. Es gelten die Datenschutzbedingungen von Google (https://policies.google.com/privacy).
Ich bin einverstanden